伸縮式キャスターテント 「KoLoKoLo」
- ⾒積もり無料
ここがスゴイ!キャスターテントの3つの特長
短時間で設置可能な蛇腹構造
設置には工具も専門業者も不要です。蛇腹構造の本体を広げるだけで、数分でテント倉庫を設置できるため、届いた日から必要なタイミングで簡単に設置が可能です。
コンパクトに畳んで移動可能
折りたためばコンパクトになり、φ100キャスター付きで移動が可能なため、必要な場所に移動させて設置するといった使い方が可能です。
用途に合わせて選べるサイズ展開
最小サイズは3.5×3m、最大サイズは5.5×6m、合計24サイズの豊富なサイズバリエーションにて展開しているため、用途に合わせてお選びいただけます。
用途多彩な活用シーン
屋根や壁のある空間は日光や風雨の影響を防ぎ、目隠しや仕切りとしての効果もあるため、様々な利用用途があります。
-
工事現場
- 資材置き場
- 休憩場所
-
工場
- 作業場の拡大
- 換気が必要な
塗装作業ブース
-
倉庫
- 搬入スペース
- 仮置き場
-
駐車・駐輪
- 屋根付き駐車
駐輪スペース
(有効間口高
2600mm)
- 屋根付き駐車
-
通路
- 建物間を結ぶ
屋根付き通路
- 建物間を結ぶ
-
イベント
- イベント本部
- イベントブース
導入コストが低い&短期間での導入が可能
届いたその日から利用可能
完成品でのお届けなので、届いたその日から利用可能です。最大サイズ5.5×6mの大きなテント倉庫でありながら、現場確認、図面作成、設置工事などを必要としないため、建設費用は一切発生せず、同程度の大きさの倉庫を建設する場合と比較して、短期間での導入が可能です。
※高さ2800の場合はジョイント材の取り付けが必要なため、運搬作業員が行います。
煩わしい建設許可の手続き不要
移動ができる伸縮式キャスターテント「KoLoKoLo」を導入する際、建築基準法に基づく建築確認申請は不要です。煩わしい手続きや長期間の審査待ちの心配がなく、ご購入から利用までスムーズに行えます。
長く使える品質と安全性
耐久性と安定性の高い骨格
ダブルフレーム構造と1mの短い間隔で配置された1スパン独立構造のフレームにより、移動時、伸縮時、設置時において安定した利用が可能です。
また、溶融亜鉛メッキで塗装された骨組みは、錆や腐食に強いため長期にわたる屋外での設置も、安心してご利用いただけます。
耐候性が高く長期間の利用に強いテント生地
使用されているテント生地は、防炎、吸水防止、UVカットなど、耐候性が高く安心してご使用いただけるものを採用しています。 大型のテント倉庫やトラックのシートなどでも使用されており、強い日差しや風雨にさらされ続ける場所でも抜群の耐久性を発揮する実績と信頼性のある日本メーカーのテント生地です。
ロック付きキャスターで移動も設置も安心
キャスターはφ100の小回りの良いものを採用し、移動時の負担を軽減。ストッパーがついており、安全に設置や保管が可能です。 さらに長期的に設置場所が固定される場合、専用プレートとの併用でアンカー固定も可能です。
※本体と専用プレートはボルトによる着脱が可能です。
商品バリエーション
ご利用用途やご利用場所のスペースに合わせて「サイズ」「タイプ」「カラー」を自由に組み合わせてお選びいただけます
選べるタイプは3種類
選べるサイズの組み合わせは各タイプ毎に24種類
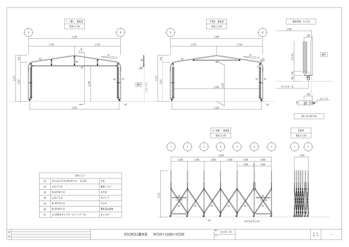
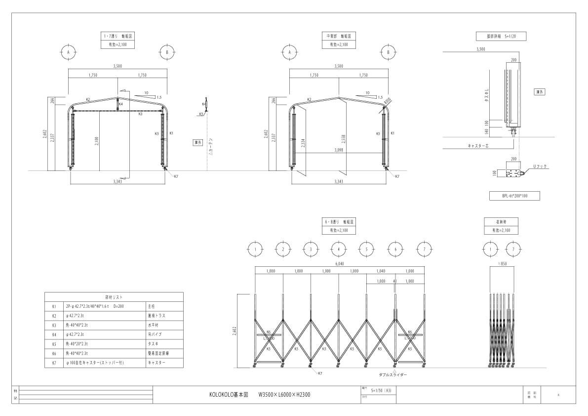
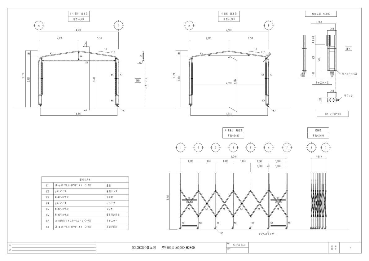
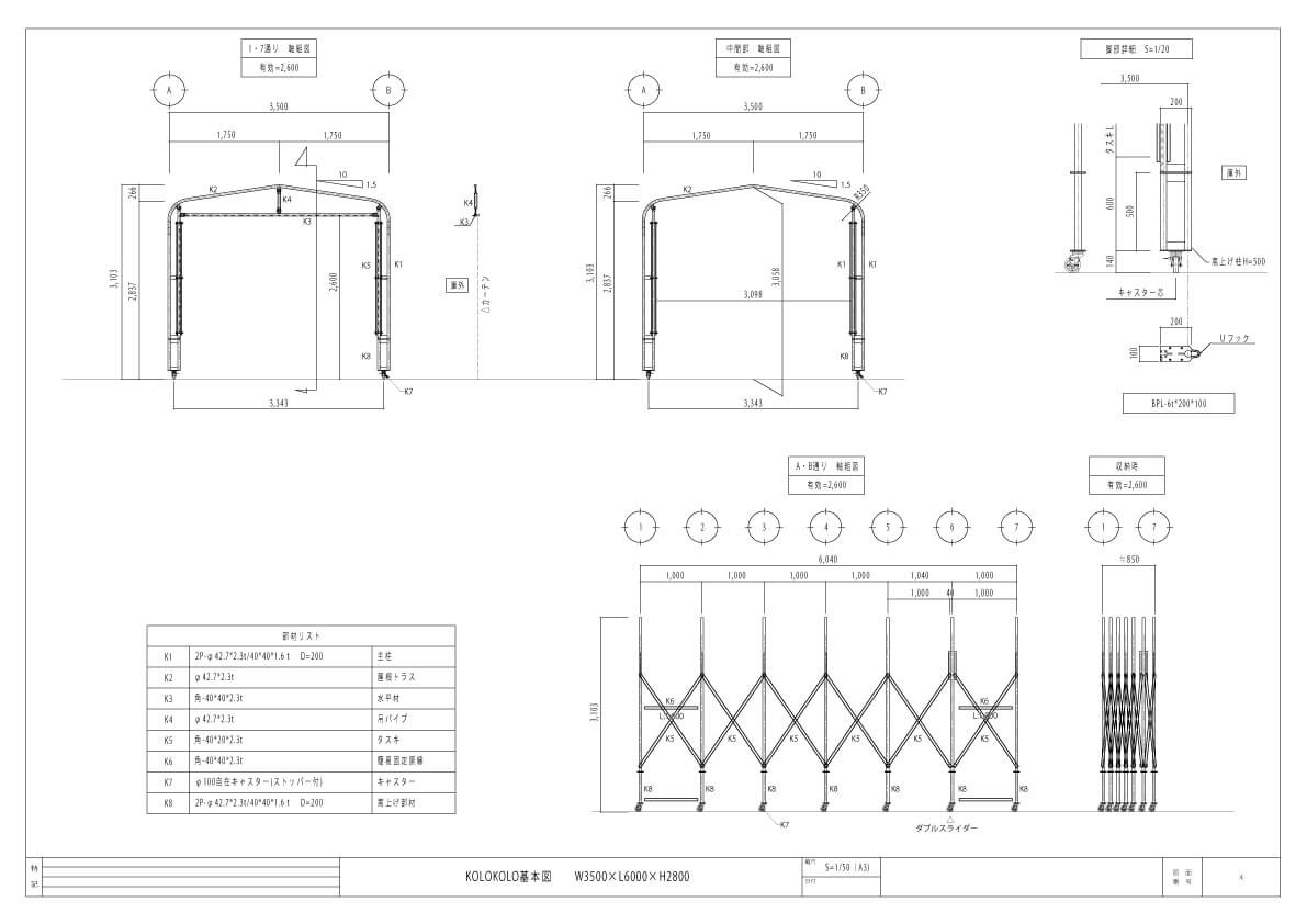
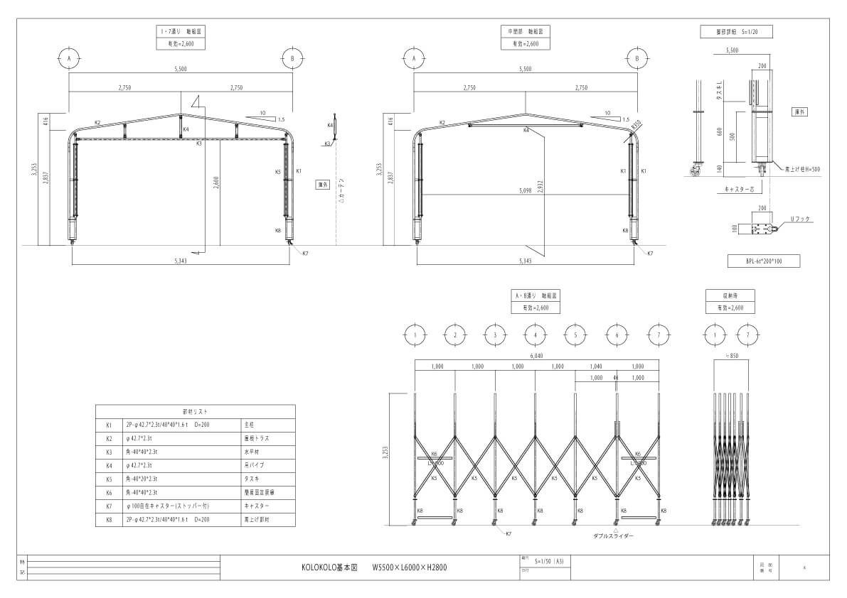
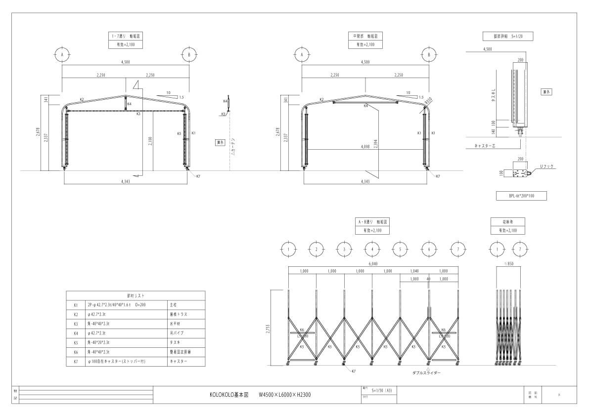
単位:mm
| 高さ【H】(有効寸法) | 2300(2100) | 2300(2100) | 2300(2100) | |
|---|---|---|---|---|
| 2800(2600) | 2800(2600) | 2800(2600) | ||
| 間口【W】(有効寸法) | 3500(3098) | 4500(4098) | 5500(5098) | |
| 奥行【D】 | 3040 | 4040 | 5040 | 6040 |
選べるカラーは24色
- アイボリー(標準色)
-
ロイヤル
ブルー - ライトブルー
- アクアブルー
-
ダーク
グリーン - グリーン
-
フォレスト
グリーン -
スカイ
グリーン -
エメラルド
グリーン - ワサビ
-
ライト
グリーン - イエロー
- ワインレッド
- レッド
- ピーチ
- オレンジ
- ネイビー
- クリーム
- ベージュ
- ブラウン
- ブラック
- ダークグレー
- グレー
- ホワイト
カーテン用糸入り透明
注意事項
- ●使用する際には、必ずキャスターのストッパーを固定してください。
- ●開閉する際には、最初の1スパンを固定した後にご使用ください。
- ●移動する際には、必ず胴縁を装着し、全てのキャスターのストッパーを解除してください。
- ●伸縮動作は2名以上で左右の動きを合わせて行ってください。
- ●悪天候時(大雨、強風、突風、雪など)は、影響のない場所に移動させるか、畳んで固定してください。
- ●納品はユニック車が入れるところまでとさせていただきます。
商品ラインナップ
-
スタンダード(カーテンなし)
-
フラットキャンパス
-
糸入り透明シート
| 高さ【H】 | 間口【W】 | 奥行 【D】 |
本体 重量 |
本体価格※送料別途見積 | |
|---|---|---|---|---|---|
| 寸法(有効) | 寸法(有効) | ||||
| 2300 (2100) | 3500 (3098) | 3040 | 295kg |
943,380
円
(税込1,037,718円) |
|
| 4040 | 355kg |
1,135,080
円
(税込1,248,588円) |
|||
| 5040 | 395kg |
1,304,760
円
(税込1,435,236円) |
|||
| 6040 | 445kg |
1,479,240
円
(税込1,627,164円) |
|||
| 2300 (2100) | 4500 (4098) | 3040 | 310kg |
1,041,480
円
(税込1,145,628円) |
|
| 4040 | 370kg |
1,235,700
円
(税込1,359,270円) |
|||
| 5040 | 410kg |
1,408,620
円
(税込1,549,482円) |
|||
| 6040 | 465kg |
1,587,540
円
(税込1,746,294円) |
|||
| 2300 (2100) | 5500 (5098) | 3040 | 380kg |
1,235,040
円
(税込1,358,544円) |
|
| 4040 | 465kg |
1,485,960
円
(税込1,634,556円) |
|||
| 5040 | 520kg |
1,667,450
円
(税込1,834,195円) |
|||
| 6040 | 595kg |
1,899,120
円
(税込2,089,032円) |
|||
| 2800 (2600) | 3500 (3098) | 3040 | 320kg |
1,061,940
円
(税込1,168,134円) |
|
| 4040 | 410kg |
1,309,560
円
(税込1,440,516円) |
|||
| 5040 | 460kg |
1,506,060
円
(税込1,656,666円) |
|||
| 6040 | 540kg |
1,718,540
円
(税込1,890,394円) |
|||
| 2800 (2600) | 4500 (4098) | 3040 | 340kg |
1,152,960
円
(税込1,268,256円) |
|
| 4040 | 425kg |
1,405,080
円
(税込1,545,588円) |
|||
| 5040 | 465kg |
1,580,580
円
(税込1,738,638円) |
|||
| 6040 | 555kg |
1,825,070
円
(税込2,007,577円) |
|||
| 2800 (2600) | 5500 (5098) | 3040 | 405kg |
1,350,360
円
(税込1,485,396円) |
|
| 4040 | 520kg |
1,654,020
円
(税込1,819,422円) |
|||
| 5040 | 585kg |
1,862,500
円
(税込2,048,750円) |
|||
| 6040 | 696kg |
2,145,260
円
(税込2,359,786円) |
| 高さ【H】 | 間口【W】 | 奥行 【D】 |
本体 重量 |
本体価格※送料別途見積 | |
|---|---|---|---|---|---|
| 寸法(有効) | 寸法(有効) | ||||
| 2300 (2100) | 3500 (3098) | 3040 | 295kg |
1,102,800
円
(税込1,213,080円) |
|
| 4040 | 355kg |
1,294,500
円
(税込1,423,950円) |
|||
| 5040 | 395kg |
1,464,180
円
(税込1,610,598円) |
|||
| 6040 | 445kg |
1,626,230
円
(税込1,788,853円) |
|||
| 2300 (2100) | 4500 (4098) | 3040 | 310kg |
1,240,380
円
(税込1,364,418円) |
|
| 4040 | 370kg |
1,434,600
円
(税込1,578,060円) |
|||
| 5040 | 410kg |
1,595,330
円
(税込1,754,863円) |
|||
| 6040 | 465kg |
1,773,210
円
(税込1,950,531円) |
|||
| 2300 (2100) | 5500 (5098) | 3040 | 380kg |
1,462,080
円
(税込1,608,288円) |
|
| 4040 | 465kg |
1,700,790
円
(税込1,870,869円) |
|||
| 5040 | 520kg |
1,892,910
円
(税込2,082,201円) |
|||
| 6040 | 595kg |
2,124,580
円
(税込2,337,038円) |
|||
| 2800 (2600) | 3500 (3098) | 3040 | 320kg |
1,237,920
円
(税込1,361,712円) |
|
| 4040 | 410kg |
1,485,540
円
(税込1,634,094円) |
|||
| 5040 | 460kg |
1,669,310
円
(税込1,836,241円) |
|||
| 6040 | 540kg |
1,893,280
円
(税込2,082,608円) |
|||
| 2800 (2600) | 4500 (4098) | 3040 | 340kg |
1,372,260
円
(税込1,509,486円) |
|
| 4040 | 425kg |
1,624,380
円
(税込1,786,818円) |
|||
| 5040 | 465kg |
1,786,560
円
(税込1,965,216円) |
|||
| 6040 | 555kg |
2,042,820
円
(税込2,247,102円) |
|||
| 2800 (2600) | 5500 (5098) | 3040 | 405kg |
1,605,420
円
(税込1,765,962円) |
|
| 4040 | 520kg |
1,895,690
円
(税込2,085,259円) |
|||
| 5040 | 585kg |
2,115,770
円
(税込2,327,347円) |
|||
| 6040 | 696kg |
2,398,530
円
(税込2,638,383円) |
| 高さ【H】 | 間口【W】 | 奥行 【D】 |
本体 重量 |
本体価格※送料別途見積 | |
|---|---|---|---|---|---|
| 寸法(有効) | 寸法(有効) | ||||
| 2300 (2100) | 3500 (3098) | 3040 | 295kg |
1,082,460
円
(税込1,190,706円) |
|
| 4040 | 355kg |
1,274,160
円
(税込1,401,576円) |
|||
| 5040 | 395kg |
1,443,840
円
(税込1,588,224円) |
|||
| 6040 | 445kg |
1,606,050
円
(税込1,766,655円) |
|||
| 2300 (2100) | 4500 (4098) | 3040 | 310kg |
1,223,250
円
(税込1,345,575円) |
|
| 4040 | 370kg |
1,417,470
円
(税込1,559,217円) |
|||
| 5040 | 410kg |
1,578,340
円
(税込1,736,174円) |
|||
| 6040 | 465kg |
1,756,220
円
(税込1,931,842円) |
|||
| 2300 (2100) | 5500 (5098) | 3040 | 380kg |
1,432,740
円
(税込1,576,014円) |
|
| 4040 | 465kg |
1,671,650
円
(税込1,838,815円) |
|||
| 5040 | 520kg |
1,863,770
円
(税込2,050,147円) |
|||
| 6040 | 595kg |
2,095,440
円
(税込2,304,984円) |
|||
| 2800 (2600) | 3500 (3098) | 3040 | 320kg |
1,212,480
円
(税込1,333,728円) |
|
| 4040 | 410kg |
1,460,100
円
(税込1,606,110円) |
|||
| 5040 | 460kg |
1,644,060
円
(税込1,808,466円) |
|||
| 6040 | 540kg |
1,868,030
円
(税込2,054,833円) |
|||
| 2800 (2600) | 4500 (4098) | 3040 | 340kg |
1,370,880
円
(税込1,507,968円) |
|
| 4040 | 425kg |
1,623,000
円
(税込1,785,300円) |
|||
| 5040 | 465kg |
1,785,170
円
(税込1,963,687円) |
|||
| 6040 | 555kg |
2,041,430
円
(税込2,245,573円) |
|||
| 2800 (2600) | 5500 (5098) | 3040 | 405kg |
1,567,200
円
(税込1,723,920円) |
|
| 4040 | 520kg |
1,857,750
円
(税込2,043,525円) |
|||
| 5040 | 585kg |
2,077,830
円
(税込2,285,613円) |
|||
| 6040 | 696kg |
2,360,580
円
(税込2,596,638円) |
本格的な大型テント倉庫もご案内できます!
移動を必要とせず、長期にわたって利用することを前提とした大型の倉庫が必要な場合、大型のテント倉庫もご案内可能です。
ご興味ありましたらお気軽にご相談ください。(リンク先はグループ会社の商品ページです)
お問い合わせフォーム CONTACT FORM
内容によっては回答をさしあげるのにお時間をいただくこともございます。
また、休業日は翌営業日以降の対応となりますのでご了承ください